

Terrain 1290 m² 1290 m²
Cervione (20221)A propos de ce bien
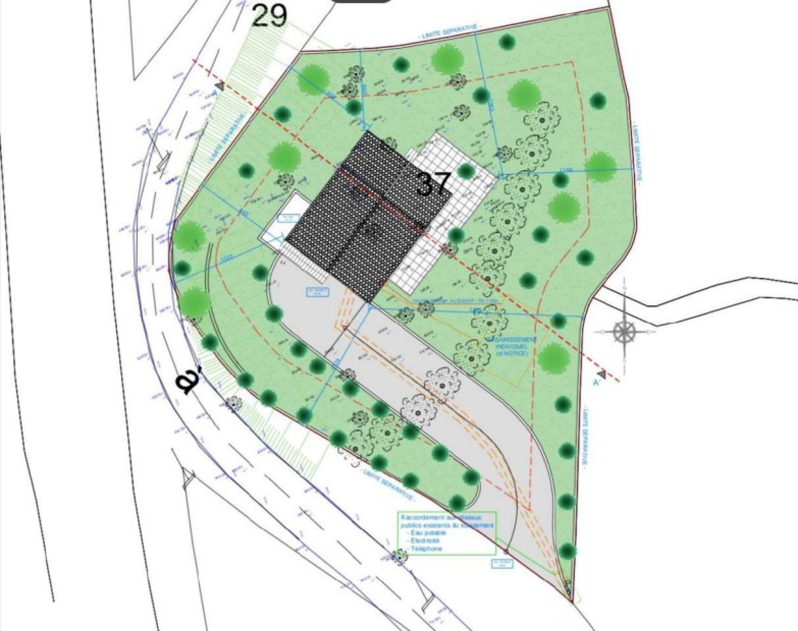
A VENDRE sur la commune de CERVIONI un terrain de 1290m² constructible sur sa totalité. Terrain avec Permis de Construire accordé et purgé de tous recours. CU positif. Terrain d'accès facile, exposé Sud, pentu avec deux parties plates en contre bas. Des travaux de terrassement et d'élagage ont été effectués (voir sur photos). Il dispose d'une petite vue mer et a été défriché dans sa quasi totalité. Raccord aux réseaux aux abords du terrain.(eau, EDF ,telecom). Le terrain se situe à 5 minutes des plages de prunete et 5 minutes du centre du village (commerces, école, collège). Les raccordements étant à la charge de l'acquéreur; Les travaux peuvent être entrepris immédiatement après acquisition. Le permis est à votre disposition (plans du PC, études et démarches effectuées). Toutefois, un dépôt de permis modificatif est bien évidemment possible. Environnement calme et résidentiel. Aucun vis à vis.
Caractéristiques de ce bien
- terrain 1 290 m²
Diagnostics énergétiques
Diagnostics énergétiques
Informations financières
Autour du bien
-
Commerces et santé
-
Loisirs
-
Ecoles
-
Transports
-
Pratique